- 受力變形
- 因工件壁薄,在夾緊力的作用下容易產生變形,從而影響工件的尺寸精度和形狀精度,如圖1所示。
- 受熱變形
- 因工件較薄,切削熱會引起工件熱變形,使工件尺寸難于控制。
- 振動變形
- 在切削力(特別是徑向切削力)的作用下,很容易產生振動和變形,影響工件的尺寸精度、形狀、位置精度和表面粗糙度。
一、工件特點分析
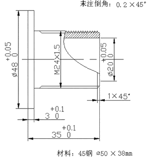
- 因為是薄壁零件,螺紋部分厚度僅有4mm,材料為45號鋼,而且批量較大,既要考慮如何保證工件在加工時的定位精度,又要考慮裝夾方便、可靠。通常的車削都是用三爪卡盤夾持外圓或撐內孔的裝夾方法來加工,但此零件較薄,車削受力點與加緊力作用點相對較遠,而且還需車削M24螺紋,受力很大,剛性不足,容易引起晃動,因此要充分考慮如何裝夾定位的問題。
- 螺紋加工部分厚度只有4mm,而且精度要求較高。
- 目前廣州數控系統GSK980T螺紋編程指令有G32、G92、G76。G32是簡單螺紋切削,顯然不適合。G92螺紋切削循環采用直進式進刀方式,如圖3所示,刀具兩側刃同時切削工件,切削力較大,而且排削困難,在切削時兩切削刃容易磨損,在切削螺距較大的螺紋時,由于切削深度較大,刀刃磨損較快,從而造成螺紋中徑產生誤差,但由其加工的牙形精度較高。G76螺紋切削循環采用斜進式進刀方式,如圖4所示,單側刀刃切削工件,刀刃容易損傷和磨損,但加工的螺紋面不直,刀尖角發生變化,而造成牙形精度較差。

圖3 G92直進式加工
圖4 G76斜進式加工- 從以上對比可以看出,只簡單利用一個指令進行車削螺紋是不夠完善的,采用G92、G76混用進行編程,即先用G76進行螺紋粗加工,再用G92進精加工的方式在薄壁螺紋加工中將有兩大優點:一方面可以避免因切削量大而產生的薄壁變形;另一方面能夠保證螺紋加工的精度。
- 目前廣州數控系統GSK980T螺紋編程指令有G32、G92、G76。G32是簡單螺紋切削,顯然不適合。G92螺紋切削循環采用直進式進刀方式,如圖3所示,刀具兩側刃同時切削工件,切削力較大,而且排削困難,在切削時兩切削刃容易磨損,在切削螺距較大的螺紋時,由于切削深度較大,刀刃磨損較快,從而造成螺紋中徑產生誤差,但由其加工的牙形精度較高。G76螺紋切削循環采用斜進式進刀方式,如圖4所示,單側刀刃切削工件,刀刃容易損傷和磨損,但加工的螺紋面不直,刀尖角發生變化,而造成牙形精度較差。
二、優化夾具設計
三、刀具的合理選擇
- 內鏜孔刀采用機夾刀,縮短換刀時間,無需刃磨刀具,具有較好的剛性,能減少振動變形和防止產生振紋;
- 外圓粗、精車均選用硬質合金90°車刀;
- 螺紋刀選用機夾刀,標準刀尖角度,以便磨損時易于更換。
#p#分頁標題#e#表 針對GSK980T的加工程序 程序內容 程序說明 %1234 G00 X200 Z50 定位至起刀點 S1 M3 啟動主軸,轉速560r/min T0101 調用1#鏜孔刀 G00 X16 Z5 定位至(16,5) G71 U0.8 R0.3 G71外圓車削循環,
對內孔f21進行粗加工 G71 P1 Q2 U-0.5 W0 F100 N1 G0 X21.4 G1 Z0 F40 X21 Z-0.2 N2 Z-37 G0 X200 Z50 M5 回至起刀點,主軸停止 M0 程序停止 M3 S1 主軸啟動,轉速560r/min G0 X16 Z5 定位至(16, 5) G70 P1 Q2 G70精車循環N1~N2 G0 X200 Z50 定位至起點 G90 X50 Z-6 F100 G90外圓車削循環 X48 車至f48 G0 X100 Z100 M5 回到起刀點,主軸停止 M0 程序停止,零件調頭并裝夾 T0202 調用2#外圓精車刀 M3 S1 主軸啟動,轉速1120r/min G00 X50 Z2 定位至(50, 2) G71 U2 R0.5 G71外圓車削循環,
對螺紋外圓進行粗加工 G71 P3 Q4 U0.5 W0 F100 N3 G0 X21.805 G1 Z0 F50 X23.805 Z-1 N4 Z-32 G0 X100 Z100 M5 回到起刀點,主軸停止 M0 程序停止 M3 S2 主軸啟動,轉速1120r/min G00 X50 Z2 定位至(50, 2) G70 P3 Q4 精車N3~N4內容 G0 X100 Z100 回換刀點(100, 100) T0404 調用4#螺紋刀 G0 X25 Z5 定位至(25, 5) G76 P010160 Q300 R0.1 G76螺紋車削循環
車削M24×1.5螺紋部分 G76 X22.25 Z-28 P975 Q100 F1.5 G0 X25 Z5 定位至G76同一螺紋加工起點 G92 X22.15 Z-28 F1.5 G92精修螺紋 X22.05 X22.05 G0 X100 Z100 M5 返回起點、停主軸 M30 程序結束 - 加工步驟選定
- 裝夾毛坯15mm長,平端面至加工要求;
- 用f18鉆頭鉆通孔,粗、精加工f21通孔;
- 粗、精加工f48外圓,加工長度大于3mm至尺寸要求;
- 調頭,利用夾具如圖2所示裝夾,控制總長尺寸35mm平端面;
- 加工螺紋外圓尺寸至f23.805;
- 利用G76、G92混合編程進行螺紋加工;
- 拆卸工件,完成加工。
五、切削用量選擇
- 內孔粗車時,主軸轉速為500~600r/min,進給速度F100~F150,留精車余量0.2~0.3mm;
- 內孔精車時,主軸轉速為1100~1200 r/min,為取得較好的表面粗糙度選用較低的進給速度F30~F45,采用一次走刀加工完成;
- 外圓粗車時,主軸轉速為1100~1200 r/min,進給速度F100~F150,留精車余量0.3~0.5mm;
- 外圓精車時,主軸轉速為1100~1200 r/min,進給速度F30~F45,采用一次走刀加工完成。
六、所編制的加工程序
七、加工時的幾點注意事項
- 工件要夾緊,以防在車削時打滑飛出傷人和扎刀;
- 在車削時使用適當的冷卻液(如煤油),能減少受熱變形,使加工表面更好地達到要求;
- 要注意安全文明生產。
相關文章
- 2021-09-08BIM技術叢書Revit軟件應用系列Autodesk Revit族詳解 [
- 2021-09-08全國專業技術人員計算機應用能力考試用書 AutoCAD2004
- 2021-09-08EXCEL在工作中的應用 制表、數據處理及宏應用PDF下載
- 2021-08-30從零開始AutoCAD 2014中文版機械制圖基礎培訓教程 [李
- 2021-08-30從零開始AutoCAD 2014中文版建筑制圖基礎培訓教程 [朱
- 2021-08-30電氣CAD實例教程AutoCAD 2010中文版 [左昉 等編著] 20
- 2021-08-30電影風暴2:Maya影像實拍與三維合成攻略PDF下載
- 2021-08-30高等院校藝術設計案例教程中文版AutoCAD 建筑設計案例
- 2021-08-29環境藝術制圖AutoCAD [徐幼光 編著] 2013年PDF下載
- 2021-08-29機械AutoCAD 項目教程 第3版 [繆希偉 主編] 2012年PDF


