華潤公寓樣板間CAD詳細施工圖及效果圖下載
- 軟件大小:126 MB
- 更新時間:2018-03-04
- 軟件授權:免費下載
- 所屬欄目:CAD經典實例
- 軟件情況:綠色安全免費下載
- 軟件語言:簡體中文
- 應用平臺:windows xp/vista/win7/
- 本站地址:CAD之家 m.super-win.com.cn
軟件介紹
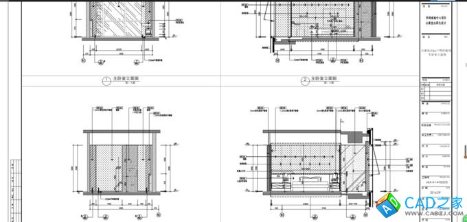
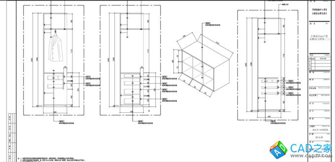
華潤公寓樣板間A戶型CAD詳細施工圖、效果圖和物料表










[ 下載地址1 ]
推薦下載
華潤公寓樣板間A戶型CAD詳細施工圖、效果圖和物料表









