東南亞風格雙拼別墅很詳細的施工圖+效果圖
- 軟件大小:11 MB
- 更新時間:2016-08-07
- 軟件授權:免費下載
- 所屬欄目:CAD經典實例
- 軟件情況:綠色安全免費下載
- 軟件語言:簡體中文
- 應用平臺:windows xp/vista/win7/
- 本站地址:CAD之家 m.super-win.com.cn
軟件介紹
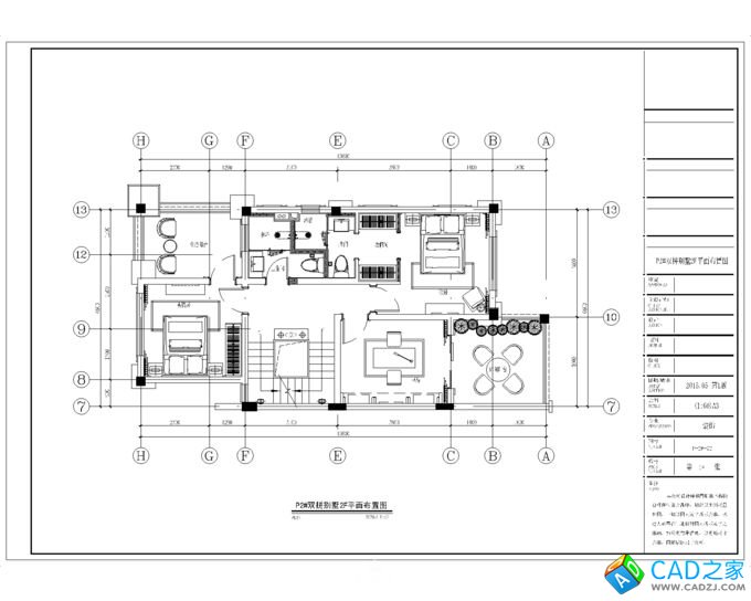
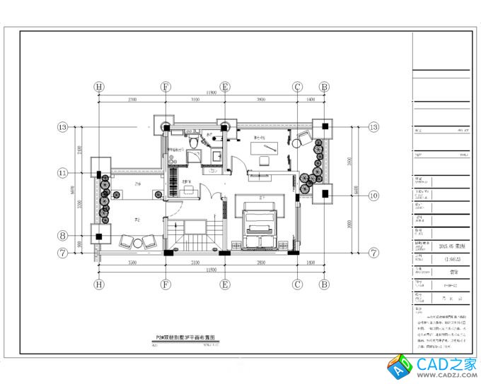
項目名稱:雙拼別墅
CAD格式: AutoCAD 2008
施工圖內容: 平面 立面 節點大樣 效果圖







[ 下載地址1 ]
推薦下載