廈門角美水岸新銷售中心城施工圖CAD圖紙下載
- 軟件大小:34.1 MB
- 更新時間:2014-02-11
- 軟件授權:免費下載
- 所屬欄目:CAD經典實例
- 軟件情況:綠色安全免費下載
- 軟件語言:簡體中文
- 應用平臺:windows xp/vista/win7/
- 本站地址:CAD之家 m.super-win.com.cn
軟件介紹
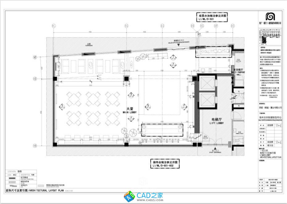
廈門角美水岸新銷售中心城施工圖
施工圖簡介
項目名稱: 角美水岸新銷售中心
CAD格式: AutoCAD 2004
文件大小: 17.2MB
原創設計師: 發輝
施工圖內容: 平面 立面 節點

[ 下載地址1 ]
推薦下載